上海[切换]
打造中国专业公装网站,截止目前已为28.329位用户提供了优质装修服务! | 网站地图 | 上海装修公司咨询电话: 400-877-6528 | 相关热点
德信·体育(DexinSports)官方网站
400-877-6528
热线咨询 400-877-6528

我也要设计成这样

今天已有125人获取了装修预算
所在城市:*
房屋面积:*
空间状态:*
空间状态
  • 空间状态
  • 毛坯房
  • 旧房重装
  • 局部改造
装修档次:*
装修档次
  • 装修档次
  • 简单装修
  • 中等装修
  • 豪华装修
空间类型:*
空间类型
  • 空间类型
  • 办公室装修
  • 餐饮装修
  • 酒店装修
  • 店面装修
  • 会所装修
  • 厂房装修
手机号码:*
*为了您的权益,您的隐私将被严格保密

上海市创客白领公寓

明祺为您提供文化空间 项目策划+品牌解析+空间优化(硬装和软装)+空间运营整体全案解决方案
您的隐私将严格保密,请放心填写

案例介绍

时晶

  • 项目名称: 上海市创客白领公寓
  • 建筑面积: 600㎡
  • 服务项目: 酒店空间设计

项目名称:上海市创客白领公寓

项目地址:上海嘉定区南翔镇中佳路29弄

本案要打造一个精致的环境设计、舒适的房间布局、便捷的公共配套,带给青年前所未有的居住体验,更加以多样化社区活动和娱乐,高端的生活配套设施为青年人打造一个多样化的交流、活动的平台,未来将成为一个中国最具有人文特色的青年社区领导品牌。

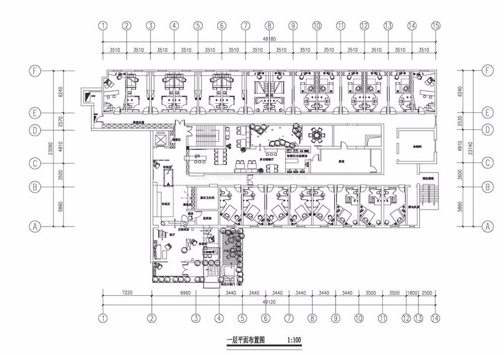
平面图

创客白领公寓装修设计平面图,公寓装修设计平面图创客白领公寓设计平面图,公寓设计平面

其他

创客白领公寓装修设计效果图,白领公寓装修设计效果图创客白领公寓装修设计图片,创客白领公寓装修设计图创客白领公寓装修设计图,白领公寓装修设计图创客白领公寓设计效果图,创客白领公寓设计效果创客白领公寓设计图片,白领公寓设计图创客白领公寓设计图,白领公寓设计图创客白领公寓装饰效果图,白领公寓装饰效果图创客白领公寓装饰图片,白领公寓装饰图创客白领公寓装饰图,白领公寓装饰图创客白领公寓空间设计效果图,白领公寓空间设计效果图创客白领公寓装饰图,白领公寓装饰图创客白领公寓空间设计图,白领公寓空间设计图创客白领公寓空间设计图片,白领公寓空间设计图创客白领公寓空间设计图,创客白领公寓空间设计公寓装修设计效果图,公寓装修设计公寓装修设计图片,公寓装修设计图酒店式公寓空间设计图,酒店式公寓空间设计酒店式公寓空间设计图片,酒店式公寓空间设计图酒店式公寓空间设计效果图,酒店式公寓空间设计酒店式公寓装饰图,酒店式公寓装饰酒店式公寓设计图,酒店式公寓设计图公寓空间设计图,公寓空间图,酒店式公寓装饰布局图,酒店式公寓装饰布局酒店空间装修案例图片,公寓装修设计图酒店空间装修案例图片,公寓装修设计图酒店空间装修案例图片,公寓设计效果图酒店空间装修案例图片,公寓设计图片酒店空间装修案例图片,公寓装饰效果图酒店空间装修案例图片,公寓设计图公寓装饰图片,公寓装饰图酒店空间装修案例图片,公寓装饰图酒店空间装修案例图片,公寓装饰图

在线咨询
快速报价
预约设计
返回顶部