上海[切换]
打造中国专业公装网站,截止目前已为28.329位用户提供了优质装修服务! | 网站地图 | 上海装修公司咨询电话: 400-877-6528 | 相关热点
德信·体育(DexinSports)官方网站
400-877-6528
热线咨询 400-877-6528

我也要设计成这样

今天已有125人获取了装修预算
所在城市:*
房屋面积:*
空间状态:*
空间状态
  • 空间状态
  • 毛坯房
  • 旧房重装
  • 局部改造
装修档次:*
装修档次
  • 装修档次
  • 简单装修
  • 中等装修
  • 豪华装修
空间类型:*
空间类型
  • 空间类型
  • 办公室装修
  • 餐饮装修
  • 酒店装修
  • 店面装修
  • 会所装修
  • 厂房装修
手机号码:*
*为了您的权益,您的隐私将被严格保密

古色古香养生馆

明祺为您提供文化空间 项目策划+品牌解析+空间优化(硬装和软装)+空间运营整体全案解决方案
您的隐私将严格保密,请放心填写

案例介绍

孙浩邈

  • 项目名称: 古色古香养生馆
  • 建筑面积: 150㎡
  • 服务项目: 娱乐空间设计

项目名称:古色古香养生馆

项目地址:上海市五角场四平路2500号

传统中式风格古色古香、雕梁画栋给人的刻板印象,取而代之的是亲近自然、朴实、简单却内涵丰富。简洁硬朗的直线条和具有西方工业设计色彩的板式家具,搭配中式风格使用,更迎合了中式家居追求内敛质朴的设计风格,使新中式更加实用。纯净空间中,注释深色语言,素雅单纯的空间与实木家具搭配对比鲜明,色调明快,马赛克前台组合,彰显出特意的设计质感,也造就出深浅对比,层次有序的精致风华。

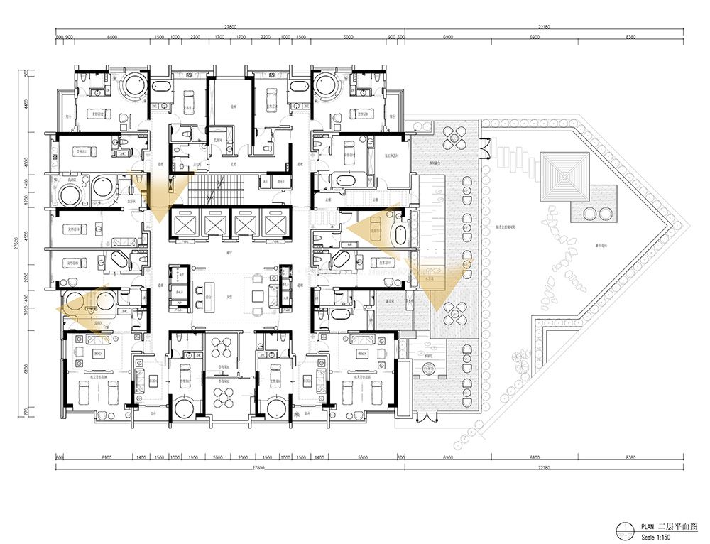
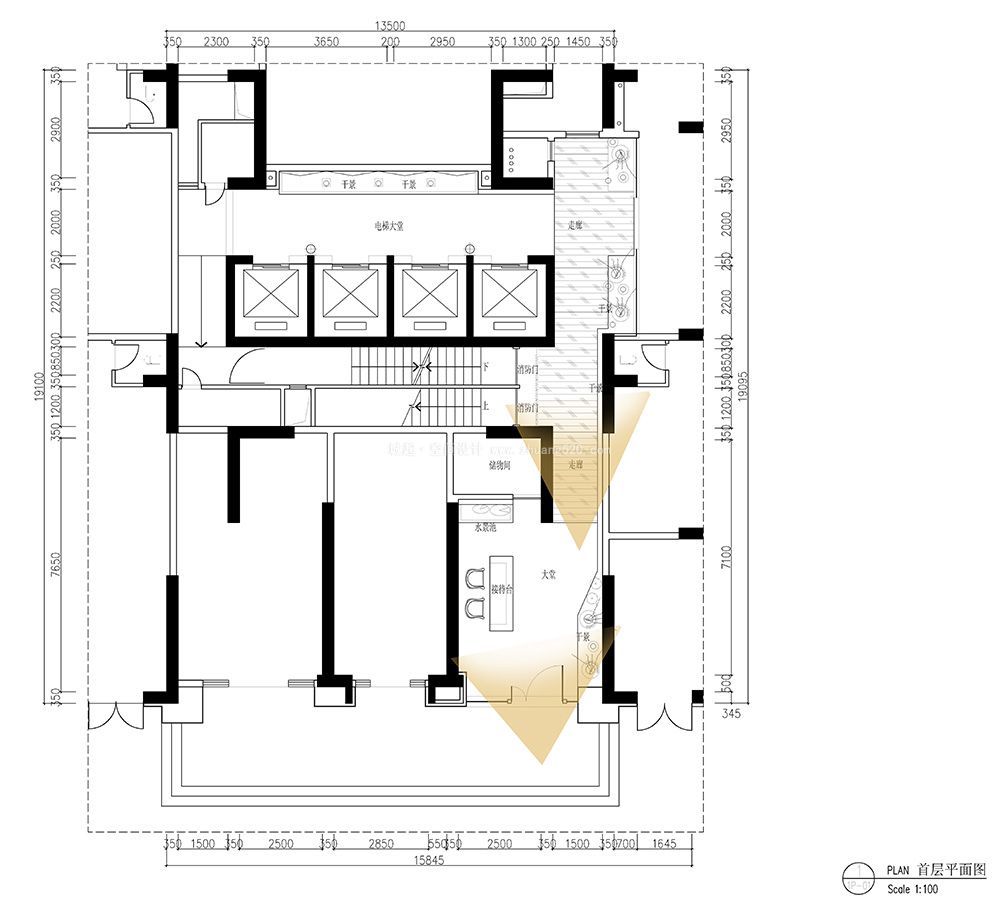
平面图

足浴店装修设计平面图,足浴店设计平面图足浴店装修设计平面图,足浴店装修平面图

在线咨询
快速报价
预约设计
返回顶部